魅惑のアイランドキッチン
【ロイヤルコート嵯峨】
当たり前だけど人間はそれぞれ違う。10人いれば10通り。100人いれば100通り。
レイアウトもデザインも部屋ごとに違うマンション。一部屋ごとにデザイナーの個性が宿る。
そんな賃貸住宅があればいいなという想いで始まりました。
多様性住宅、京都右京区初の新しい暮らしの形。
特設サイト⇨https://www.ccr702.com/royal-court-saga
___________________________________________________________________________
401-A号室のプロデューサーはYASUHIRO SAWA DESIGN OFFICEの建築士、澤 康博さん。
コンセプトは澤さんが住んでみたい部屋。そんなお部屋のご紹介。
これまで色々な物件を見て、色々とご紹介させていただいてきましたが、ここまで驚きの連続だったお部屋は初めてでした。個人的な主観、感想ですが、賃貸物件でここまでの部屋は、やまだかつて、あ、いまだかつてないのではないでしょうか。
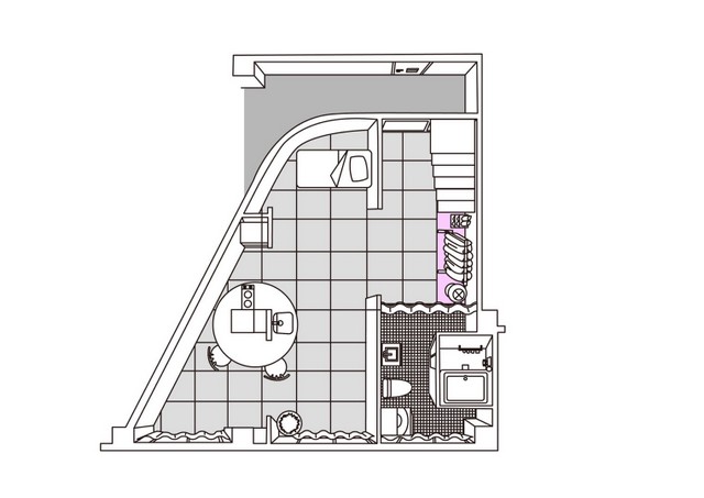
アイランドキッチンといえば、そう。皆さんが思い描くあのタイプのキッチンです。でも、このお部屋のキッチンを見てしまうと、いままでのアイランドキッチンはまやかしだったんだと気づかされます。柱をグルっと囲んでいる円形のキッチン。この様がまさに島のよう。これこそが真のアイランドキッチン。キッチンはダイニングテーブルも兼ねていて、さっと料理を出すこともできちゃうんです。素敵やん。こんなキッチン、やまだ、あ、いまだかつてない。これこそが魅惑のアイランドキッチン。
驚きポイントはこれだけじゃないんです。このお部屋、実は皆さんが住んでいるお部屋にほとんど付いているあるものがないんです。なんだと思います。写真をよく見て下さい。お分かりになりましたでしょうか。あれです。そうあれです。あれがこのお部屋にはないんです。正解は、扉、建具がないんです。水廻りはカーテンで仕切っています。カーテン明けたらそこはトイレ。開放的で素敵やん。こんな素敵なトイレ一度座ってみたくないですか。ここに住んだら毎日座れちゃいます。お風呂には扉があるじゃない。というような細かい事は三角コーナーにポイでお願いします。
次の驚きポイントは、意味ありげな階段。この階段をあがっても上の階にはいけません。なんで、ここに階段があるのかというと、ちょっと説明すると長くなるんで、気になる方はご連絡下さい。この階段はあえて残しています。ここに靴や植物や好きな物を並べたむちゃくちゃかわいいなって思いますし、また、意味もなく腰かける事もできちゃいます。意味もなく腰かけた行動が、なにか意味のある行動になるかもしれない、そんなもしかしてがある空間で素敵じゃないですか。そうなると、階段壊さないでそのまま置いといちゃいますよね。階段を置いておいたんで、階段の下にベンチのような空間が出来ちゃったんです。これも素敵で面白いです。
いやー、もう驚きの連続でお腹いっぱいです。まだまだ驚きポイントがあるんですが、一旦ここまで。
続きの驚きポイントが気になる方は是非現地見に来て下さい。お問い合わせお待ちしております。
物件概要
種別 | マンション |
---|---|
物件名 | ロイヤルコート嵯峨 401A号室 |
所在地 | 京都市右京区嵯峨中通町13番地36 |
賃料 | 128,000円 |
管理費/共益費 | 5,000円 |
礼金 | 賃料1ヶ月 |
敷金 | 賃料1ヵ月 |
再契約料 | 賃料1ヵ月 |
交通 | 京福電気鉄道嵐山本線【車折神社】駅 徒歩5分 |
面積 | 55㎡ |
総戸数 | 23戸 |
築年月 | 昭和48年4月築 令和7年9月リノベーション工事完了 |
入居可能時期 | 相談 |
設備 | 上・下水道、都市ガス、電気、エアコン、カメラ付きインターホン、オートロック、インターネット |
契約/期間 | 定期借家契約3年 |
ペット飼育 | 相談可(※飼育可の場合は条件変更有) |
ハウスクリーニング費用 | 退去時:50,000円(税別) |
保証人 | 要 |
駐車/駐輪 | 駐車場:有 月額15,000円(税別) 駐輪場:有 1台無料 ※2台目以降 月額500円(税別) バイク駐輪場:有 月額1,000円(税別) |
取引形態 | 媒介 |
仲介手数料 | 要 |
保証会社加入 | 加入要 |
保証会社費用 | 【居住用】:初回保証料 賃料40% 更新料 10,000円/年 口座振替手数料 月額 440円 【事業用】:初回保証料 賃料100% 更新料 賃料10%/年 |
その他 | ・損害保険加入要 ・事務所利用相談可 |
その他におすすめの物件
-
売買物件
河原町通面す、ちょっと変わった個人店が集まるこの街で 賃貸マンションプラン有 ※価格変更※
京都市上京区出水町 | 9,980万円
-
賃貸物件
同志社裏に隠れた土間ベース
京都市上京区相国寺 | 賃料:9.5万円
-
賃貸物件
日々、変わる街で商う 京都市左京区岡崎
京都市左京区岡崎 | 賃料:35万円(税別)
-
売買物件
優雅な庭でアフタヌーンティーを
大津市比叡平 | 1,980万円
-
賃貸物件
まるでアート作品のような部屋
京都市右京区嵯峨中通町 | 賃料:9.8万円
-
賃貸物件
ココロクスブル レディーGo
京都市右京区嵯峨中通町 | 賃料:6.5万円
-
賃貸物件
賀茂川眺望・角の町家をぬけて
京都市北区上賀茂 | 賃料:27.5万円
-
売買物件
大原の景色を詰め込むリノベ済の戸建
京都市左京区大原 | 4,980万円