緑の比叡平 ~目の前に公園を添えて~ パート2
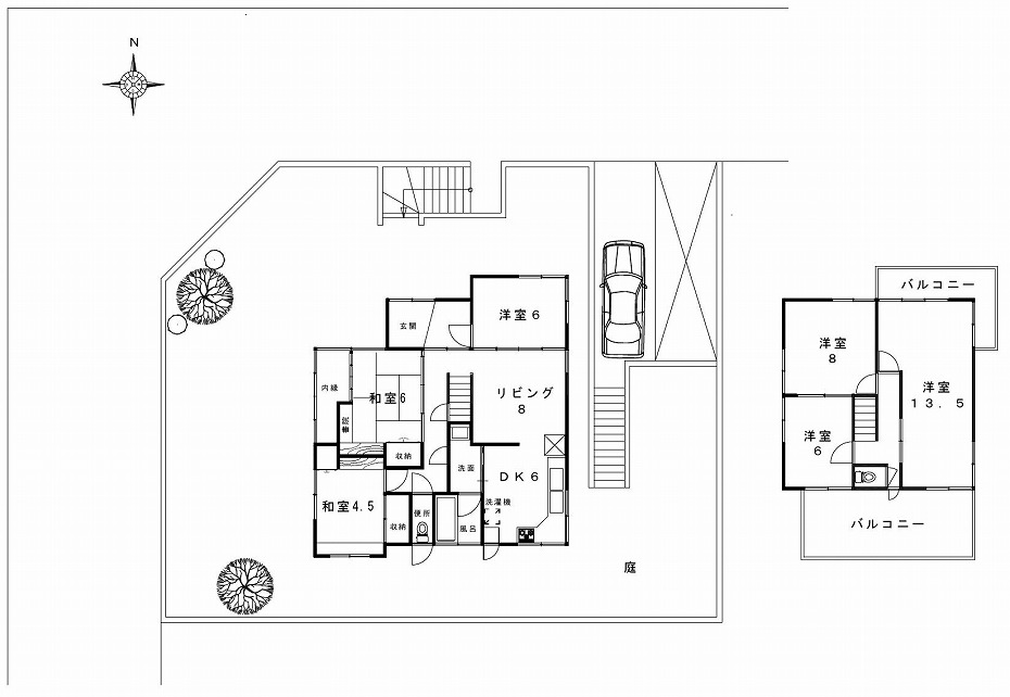
こちらの物件は弊社の事務所から車で約15分の場所にある土地も建物も大きな物件です。建物は44.6坪、土地は116.7坪、角地で公園が目の前。先日まで某大学の教員の方がお住まいで、学生さん達とあつまってバーベキューをしたり、優雅にお住まいだったようです。現在は別の場所にお住まいになり、2拠点でお使いになられてたのですが、利用回数が減ってくるので、処分ということで当社のほうにお譲りいただきました。もともと大工さんのご自宅として建てられたおうちのようで、和室がいろいろこだわりがあるように思われます。難しいことはわかりませんが槍、薙刀、刀、脇差なんかもかざっておられるお家です。(使わないでしょうが思い出でなんとなく残しておきます)
比叡平は以前にも書きましたが、私が将来住もうと思っていた場所です。なぜそうかといいますと、土地が大きく家もゆったりしているので、いわゆるマイホームって言うイメージの生活が出来ます。京都は土地が狭い家が多く、感覚的に30坪あれば大きいお家です。ですが、比叡平に来ると小さくて50坪、平均的に100坪位のおうちがほとんどです。今回の物件も116坪とゆったりした土地になってます。
この家のいい点ですがバルコニーから見える比叡山が美しく、公園が目の前にありますので、本当にゆったりしています。お子様がおられるご家庭は本当にオススメです。庭で遊んだり、目の前の公園で遊んだり体を動かせる遊びが出来そうです。
聞いたとこによりますと比叡平小学校は上級生が下級生を見るシステムがあったり、放課後クラブのバレーボールクラブが全国的に強豪で有名だったりと魅力溢れる場所になってます。
交通の便はわるいですが車さえあればほとんどの問題が解消されると思います。家で仕事ができる人たちにはお家が大きく間数も多いので生活しやすいかと。是非内覧に来てください。
物件概要
| 種別 | 一戸建て |
|---|---|
| 物件名 | 比叡平3丁目貸し家 |
| 所在地 | 大津市比叡平3丁目8番15 |
| 賃料 | 98,000円 |
| 礼金 | 98,000円 |
| 敷金 | 98,000円 |
| 再契約料 | 無し |
| 交通 | 京阪バス「3丁目東」バス停徒歩7分 |
| 面積 | 1階: 93.70㎡ 2階:53.94㎡ 延べ147.64㎡ (44.66坪) |
| 総戸数 | 1戸 |
| 築年月 | 昭和54年9月築(築46年) |
| 入居可能時期 | 相談 |
| 設備 | 上下水道・電気・LPガス・灯油 |
| 契約/期間 | 3年 |
| ペット飼育 | 相談可 |
| ハウスクリーニング費用 | 退去時、ハウスクリーニング料55,000円(税込)を敷金より控除 |
| 保証人 | 必要 |
| 駐車/駐輪 | 普通車+軽自動車可 |
| 取引形態 | 貸主 |
| 仲介手数料 | かかりません |
| 保証会社加入 | 株式会社ジェイリース |
| 保証会社費用 | 家賃の1か月分必要 |
その他におすすめの物件
-
賃貸物件
【再募集】猫のお家
京都市左京区一乗寺南大丸町 | 賃料:8.3万円
-
賃貸物件
農園付きアパート、住んでみませんか?
山科区日ノ岡坂脇町 | 賃料:7.5万円
-
賃貸物件
同志社裏に隠れた土間ベース *価格変更
京都市上京区相国寺 | 賃料:8.8万円
-
賃貸物件
【ペット可・事務所利用可】13人のデザインで彩るネオ賃貸プロジェクト ロイヤルコート嵯峨 ファイナル
京都市右京区嵯峨 | 賃料6.5,万円~12.8万円
-
賃貸物件
【ペット可・事務所利用可】背伸びのない素敵空間。お料理好きの方はこちらへ。
京都市右京区嵯峨 | 賃料:9.8万円
-
賃貸物件
【ペット可・事務所利用可】揺らぐカーテンと自由の空間
京都市右京区嵯峨 | 賃料:12.8万円
-
賃貸物件
【ペット可・事務所利用可】職人が手掛けた作品を基にデザインしたお部屋
京都市右京区嵯峨中通町 | 賃料:9.2万円
-
賃貸物件
【ペット可・事務所利用可】まるでアート作品のような部屋
京都市右京区嵯峨中通町 | 賃料:9.8万円









