【ペット可・事務所利用可】背伸びのない素敵空間。お料理好きの方はこちらへ。
【ロイヤルコート嵯峨】
当たり前だけど人間はそれぞれ違う。10人いれば10通り。100人いれば100通り。
レイアウトもデザインも部屋ごとに違うマンション。一部屋ごとにデザイナーの個性が宿る。
そんな賃貸住宅があればいいなという想いで始まりました。
多様性住宅、京都右京区初の新しい暮らしの形。
特設サイト⇨https://www.ccr702.com/royal-court-saga
___________________________________________________________________________
201号室のプロデューサーは中舎慎太郎さん。
普段は、淡路島にて、その日の美味しいものを1日1組限定で提供する料理人さんをされています。
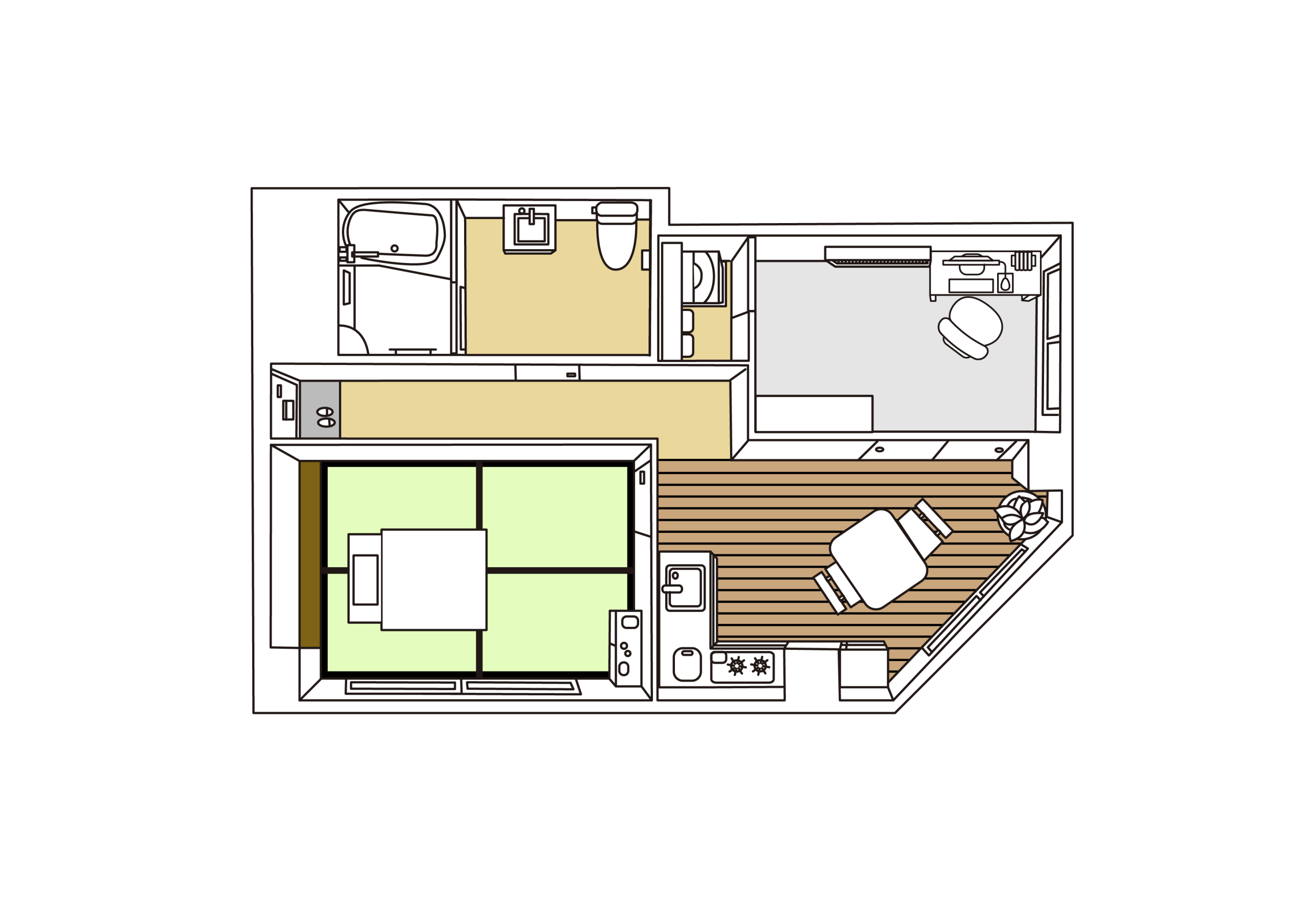
この部屋のテーマは「ふんわり料理が楽しくなるおうち」。
キッチン自体は、特別大きいわけではないのですが、正面に大きなカウンターを設置することで、ゆとりのあるキッチンが完成しました。
ここの窓は東向き。道路に対して斜めの位置に窓があるので、2階ですが正面にある建物が気にならず、いい感じに街が見えて気持ちがいいです。
特に朝なんかは。
壁に向いて食事を作り、カウンターにお気に入りの食器を並べ、盛り付けるときに視野に入る窓。
料理は朝日に照らされて、料理により満足感があるだろうな。
夜は逆にムーディーに。外はひんやりと静かで、部屋にはオレンジ色の照明がポツポツ。
食卓にスポットを当てて、ゆっくり味わいながら食べる。
個人的に、中舎さんの改装はとても好き。
「素材を活かす」がぴったりに思います。
改装済みで綺麗なんだけど、元からこうだったんじゃないかと思わせるような改装を目指しているそう。
なんだそれ難しそうだな。
でも部屋に入ってみれば、わかる。めちゃくちゃオシャレなんだけど、なんか馴染みがある。
背伸びをせず、心地よく過ごせそう。というか、そんな生活イメージが自然と湧いてくる。
もちろん自分でこの空間を作り上げるのは到底無理だが、なぜかここに生活していたような気がしてくる。
インテリアありきで完成するこの空間は、元ある素材の顔をよく見て選び抜かれたインテリアによって、元の空間とインテリアのお互いを主役にさせているようにも思う。
聞けば、中舎さんのお店もそんな感じらしい。
元々ある素材や空間を生かして、雑貨や家具、装飾で素敵な空間が作り上げられているとか。
あなたの料理生活をより輝かせてくれるお部屋に住んでみませんか。
お問い合わせお待ちしております。
物件概要
| 種別 | マンション |
|---|---|
| 物件名 | ロイヤルコート嵯峨201号室 |
| 所在地 | 京都市右京区嵯峨中通町13番地36 |
| 賃料 | 98,000円 |
| 管理費/共益費 | 5,000円 |
| 礼金 | 家賃の1ヶ月分 |
| 敷金 | 家賃の1ヶ月分 |
| 再契約料 | 家賃の1ヶ月分 |
| 交通 | 京福電気鉄道嵐⼭本線「⾞折神社」駅 徒歩5分 |
| 面積 | 53.35㎡ |
| 総戸数 | 23戸 |
| 築年月 | 1973年4⽉ 新築 |
| 入居可能時期 | 相談 |
| 設備 | 上下⽔道・都市ガス・電気・エアコン・カメラ付インターホン・オートロック・温⽔シャワートイレ・室内洗濯機置場 |
| リノベーション内容 | 2025年9⽉ リノベーション完成予定 |
| 契約/期間 | 定期借家契約 / 3年 |
| ペット飼育 | 相談可 ⼩型⽝もしくは猫1匹*原状回復要*家賃+5,000円*敷⾦+100,000円 |
| ハウスクリーニング費用 | 退去時ハウスクリーニング費⽤:50,000円(税別) |
| 保証人 | 要 |
| 駐車/駐輪 | 【駐⾞場】有 ⽉額15,000円(税別) 【⾃転⾞駐輪場】有 1台まで無料 *2台⽬以降、⽉額500円(税別) 【バイク駐輪場】有 ⽉額1,000円(税別) |
| 取引形態 | 媒介 |
| 仲介手数料 | 家賃の1ヶ月分(税別) |
| 保証会社加入 | 加入要 |
| 保証会社費用 | (居住⽤)初回保証料:家賃の40% 更新料:10,000円/年 ⼝座振替⼿数料:⽉額440円 (事業⽤)初回保証料:家賃の100% 更新料:家賃の10%/年 |
| その他 | 火災保険加入要。 |
その他におすすめの物件
-
賃貸物件
同志社裏に隠れた土間ベース *価格変更
京都市上京区相国寺 | 賃料:8.8万円
-
賃貸物件
【ペット可・事務所利用可】13人のデザインで彩るネオ賃貸プロジェクト ロイヤルコート嵯峨 ファイナル
京都市右京区嵯峨 | 賃料6.5,万円~12.8万円
-
賃貸物件
【ペット可・事務所利用可】揺らぐカーテンと自由の空間
京都市右京区嵯峨 | 賃料:12.8万円
-
賃貸物件
【ペット可・事務所利用可】職人が手掛けた作品を基にデザインしたお部屋
京都市右京区嵯峨中通町 | 賃料:9.2万円
-
賃貸物件
【ペット可・事務所利用可】まるでアート作品のような部屋
京都市右京区嵯峨中通町 | 賃料:9.8万円
-
賃貸物件
【ペット可・事務所利用可】無機質と有機質と私
京都市右京区嵯峨 | 賃料:11.5万円
-
賃貸物件
【ペット可・事務所利用可】古いものが好物で好きを詰め込んだ空間
京都市右京区嵯峨 | 賃料:9.2万円
-
賃貸物件
【ペット可・事務所利用可】魅惑のアイランドキッチン
京都市右京区嵯峨 | 賃料:12.8万円
















