自然光に包まれて、市内を眺める KAWARAMACHI PLACE
KAWARAMACHI PLACE。
河原町五条にあるこのマンションは、京阪の清水五条駅から徒歩5分という好立地。
今回募集のお部屋は8階で東向き。
気持ちのいい朝日が入り、日中は程よく柔らかな自然光が期待できます。
また、東山や鴨川を含め京都市内が一望できるお部屋です。これから雪、また暖かくなってきたら桜と、季節が存分に楽しめそう。
そして、このマンションの特徴はなんといっても、大きな大きなガラス窓。
東面が足元までガラス張りで、西側のキッチン前にも正面に西山を望める窓がついており
自然光がとても気持ちよく差し込みます。
インナーバルコニー付きの開放感たっぷりのワンルームとして景色を楽しみながら過ごすもよし。
植物とか置いたら、生き生きとしたお部屋になりそう。
ワンルームが不便という方は、カーテンやブラインドをつけて、少しプライベートな空間を作るのも、良さそう。
ちなみに、内装、程よいアクセントと程よいシンプルさで、気持ちよくまとまっています。
眺望と自然光と立地、魅力的な内装に恵まれたKAWARAMACHI PLACEに住んでみませんか。
お問い合わせお待ちしております。
物件概要
| 種別 | マンション |
|---|---|
| 物件名 | KAWARAMACHI PLACE 801号室 |
| 所在地 | 京都市下京区河原町通五条下る本塩竈町583 KAWARMACHI PLACE 801号室 |
| 賃料 | 110,000円 |
| 管理費/共益費 | 9,000円 |
| 礼金 | 賃料の1ヶ月分 |
| 敷金 | 賃料の1ヶ月分 |
| 更新料 | なし |
| 交通 | 京阪電鉄本線「清水五条」駅 徒歩5分 地下鉄烏丸線「五条」駅 徒歩10分 |
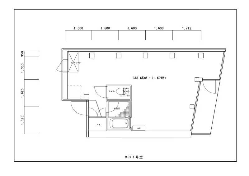
| 面積 | 38.65㎡ |
| 築年月 | 2002年3月 |
| 入居可能時期 | 2026年2月下旬ごろ |
| 設備 | 浴室乾燥機、温水洗浄便座、室内洗濯機置き場、オートロック、エレベーター、防犯カメラ |
| 契約/期間 | 2年 |
| ハウスクリーニング費用 | 退去時、ハウスクリーニング料38,500円 |
| 駐車/駐輪 | 駐車なし 駐輪:1室1台まで無料 |
| 取引形態 | 媒介 |
| 仲介手数料 | 賃料の1ヶ月分(税別) |
| 保証会社加入 | 要 |
| その他 | 水道料定額:2,200円/月 |
その他におすすめの物件
-
賃貸物件
【ペット可・事務所利用可】13人のデザインで彩るネオ賃貸プロジェクト ロイヤルコート嵯峨 ファイナル
京都市右京区嵯峨 | 賃料6.5,万円~12.8万円
-
賃貸物件
【ペット可・事務所利用可】背伸びのない素敵空間。お料理好きの方はこちらへ。
京都市右京区嵯峨 | 賃料:9.8万円
-
賃貸物件
【ペット可・事務所利用可】揺らぐカーテンと自由の空間
京都市右京区嵯峨 | 賃料:12.8万円
-
賃貸物件
【ペット可・事務所利用可】職人が手掛けた作品を基にデザインしたお部屋
京都市右京区嵯峨中通町 | 賃料:9.2万円
-
賃貸物件
【ペット可・事務所利用可】まるでアート作品のような部屋
京都市右京区嵯峨中通町 | 賃料:9.8万円
-
賃貸物件
【ペット可・事務所利用可】無機質と有機質と私
京都市右京区嵯峨 | 賃料:11.5万円
-
賃貸物件
【ペット可・事務所利用可】古いものが好物で好きを詰め込んだ空間
京都市右京区嵯峨 | 賃料:9.2万円
-
賃貸物件
【ペット可・事務所利用可】魅惑のアイランドキッチン
京都市右京区嵯峨 | 賃料:12.8万円








