ノスタルジーな街のリバーサイドマンション
弊社で何度もご紹介したことのあるリバーサイド物件
その呼び名がマンション名にされている物件がございます。
リバーロードタカノ
このマンションのファンの方、いるのでは。
個人的に、一乗寺の中でもこのエリアすごく好きで。
無人駅の叡山電鉄が目の前を通っており、そこと交差するように疏水が流れています。
マンションの1階は事務所関係?が入っており、植物がたくさん並んでいるのを横目に、私はよくチャリを漕いでいます。
夜には、暗い中に小さく街灯が灯り、昔ながらの居酒屋さんや、川を跨ぐように立っているイタリア料理、自分の本棚を作れる夜までやってるブックカフェが顔をだします。
北大路通を抜けた先に、ノスタルジーな雰囲気をもつ魅力的なまち。
きたことなくてもなんだか懐かしさを感じさせる、いい古さを残すまち。
少し離れると、ラーメン通り、アルザス料理、フランス料理、タイ料理、声を出してはいけないカフェ、定食屋、古着屋など、個人で営む素敵なお店がたくさんありますよ。
そんな街にあるリバーロードタカノは、各部屋コンセプトをもち様々なリノベーションをしている挑戦的なマンション。
私は物件自体も、この物件がある街も、すごく好きです。
募集もよく見かけるのですが、なんだかんだすぐに決まっていってしまうので、中を見れたことがありません。
シンプルながらにちょうどよく飾り気のある、家具の邪魔をしない内装。
おさまりのいいリノベ物件。
散歩するだけでもきっと、楽しいですよ。
まだ居住中なので、内覧はできないのですが、気になる方はお問い合わせお待ちしております。
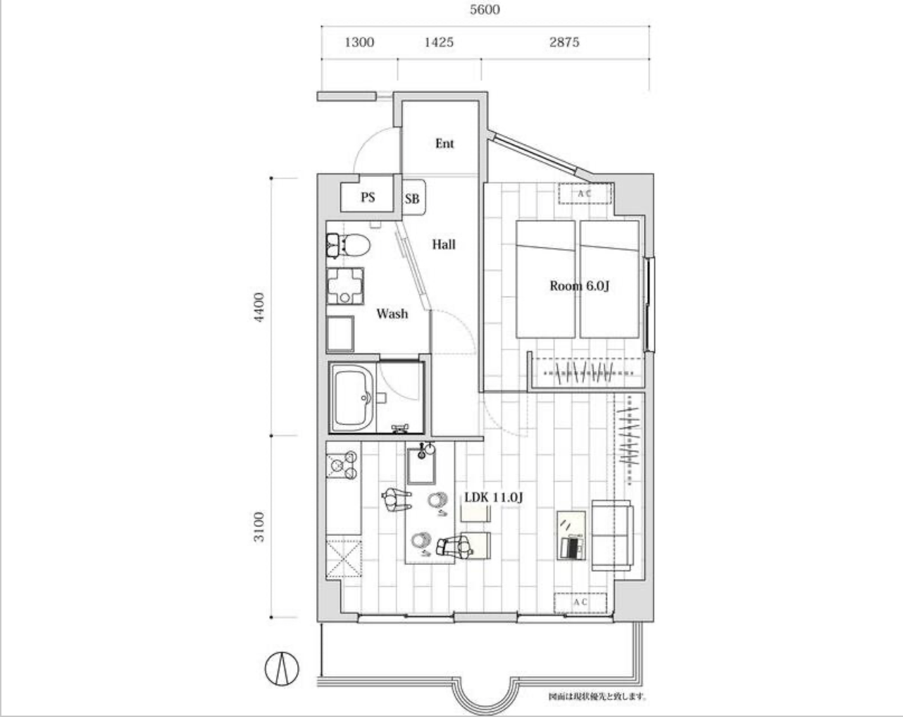
追記:今回の募集は6階なので、きっといい景色です!
物件概要
| 種別 | マンション |
|---|---|
| 物件名 | リバーロードタカノ |
| 所在地 | 京都市左京区一乗寺大原田町 |
| 交通 | 叡山電鉄「一乗寺」駅 徒歩4分 京都市バス「高野」停 徒歩3分 |
その他におすすめの物件
-
賃貸物件
【ペット可・事務所利用可】13人のデザインで彩るネオ賃貸プロジェクト ロイヤルコート嵯峨 ファイナル
京都市右京区嵯峨 | 賃料6.5,万円~12.8万円
-
賃貸物件
【ペット可・事務所利用可】背伸びのない素敵空間。お料理好きの方はこちらへ。
京都市右京区嵯峨 | 賃料:9.8万円
-
賃貸物件
【ペット可・事務所利用可】揺らぐカーテンと自由の空間
京都市右京区嵯峨 | 賃料:12.8万円
-
賃貸物件
【ペット可・事務所利用可】職人が手掛けた作品を基にデザインしたお部屋
京都市右京区嵯峨中通町 | 賃料:9.2万円
-
賃貸物件
【ペット可・事務所利用可】まるでアート作品のような部屋
京都市右京区嵯峨中通町 | 賃料:9.8万円
-
賃貸物件
【ペット可・事務所利用可】無機質と有機質と私
京都市右京区嵯峨 | 賃料:11.5万円
-
賃貸物件
【ペット可・事務所利用可】古いものが好物で好きを詰め込んだ空間
京都市右京区嵯峨 | 賃料:9.2万円
-
賃貸物件
【ペット可・事務所利用可】魅惑のアイランドキッチン
京都市右京区嵯峨 | 賃料:12.8万円


