リバーサイドのナイスビューなリノベマンション
お待たせしました。みんな大好きリバーサイド物件のご紹介です。
しかもなんとオシャンに改装されたリノベ済マンション。いいですね。ナイスですね~。
それでは物件のご紹介。
最寄駅は阪急【上桂】駅、そこから歩いて15分くらいの所に位置している、京都市西京区の桂川沿い、もとい、カツラガワリバーに佇むマンション【セントフローレンスパレス桂】。マンション北側(裏手)は河川敷。河川敷を西に西に進んでいけば、あの名勝渡月橋まで行けちゃいます。サイクリングやジョギング、散歩等するにはおすすめの場所です。
また、近くには上桂公園というビッグパークがありまして、キッズ達が思いっきり走りまわることが出来ます。この公園には大きなグランドや長い滑り台もあって、キッズ達に大人気。近隣は大きなマンションやビルも少なく、川があって山が見えてと自然を近くに感じることが出来るエリアです。上桂駅から京都の街中へは大体20分くらい。大阪梅田へは大体1時間くらいでいけちゃいます。コンビニ、スーパー、ドラッグストア等の生活施設も整っているので、とても住みやすそうだなーって思います。私が初めてこの地を訪れたのは大分前の話しですが、その時に感じたのは歩いていて気持ちの良い場所だなーって思いました。子供が小さいときよく上桂公園に連れて行って遊んでいました。エリアの紹介はここまで。是非一度体感していただきたいおすすめエリアです。
おまちどうさまです。室内のご紹介。
ちょっとここからは主観がかなり入り、もう、感想文に近いですがご容赦下さい、そして、もう少しお付き合いください。
写真見て下さい。もう説明要らないくらいでしょ。
一言。ええやん。むっちゃええやん。オシャンやん。これ、もう、オシャンすぎるやん。
ビュー最高。リビングからのビュー最高です。現地を訪れた日が黄砂みたなものが飛んでいた日で、全体的にもやがかかっていた日なんですが、それで、このビュー。スカッって晴れている日に見てしまったらもう惚れてしまうかもです。リビングは南側に開けているので日当たりもよく、視界を遮るものがほとんどないので、カーテンは開けっ放しでOKです。
アールの部分が素敵な造作キッチン。もう素敵すぎて撫でまわしたいです。キッチンの床はマーモリウムっていう天然素材が主原料の床材で、これが無茶苦茶、足触りが良いんです。気持ちよくて、ちょうどいいクッション性でキッチンの作業も快適。
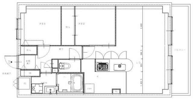
間取りは2LDK。4人はちょっと狭いかもですが、3人くらいならOKのサイズ感。
水廻りも一通り改装済みで、洗面所は収納棚もちゃんとあるので安心。玄関には大きなシューズクロークとコート等掛けられるちょっとした収納。もう至れり尽くせり。また、現所有者様はマンション内の駐車場も利用されています。そちらは引き継ぐことが可能です。あー、まだまだお話ししたいことがありますが、他は是非現地で。
いやー、いい物件でした。
ご興味ございましたら是非お問い合わせ下さい。
物件概要
| 種別 | マンション |
|---|---|
| 建物名称 | セントフローレンスパレス桂 |
| 販売価格 | 3,250万円 |
| 所在地 | 京都市西京区桂上野今井町111 |
| 交通 | 阪急嵐山線【上桂】駅徒歩14分 |
| 敷地面積 | 1751.79㎡ |
| 敷地権割合/共有部分 | 303,606分の5,916 |
| 地目・地勢 | 宅地 |
| 権利 | 所有権 |
| 接道状況 | 公道北側幅員約9.4m |
| 建物面積 | 登記簿:57.79㎡ 壁芯:59.16㎡ |
| バルコニー面積 | 7.2㎡ |
| バルコニー向き | 南 |
| 建物構造 | 鉄筋コンクリート造7階建 |
| 管理費 | 月額8,500円 |
| 修繕積立金 | 月額9,900円 |
| 所在階 | 6階 |
| 総戸数 | 49戸 |
| 築年数 | 平成7年11月新築 |
| 間取り | 2LDK |
| 管理形態 | 全部委託 |
| 管理組合 | セントフローレンスパレス桂管理組合 |
| 管理会社 | 互光建物管理株式会社 |
| 駐車場代 | 月額15,000円 |
| 駐輪代 | 自転車:年額800円/台 バイク置場:年額1,000円/台 |
| 現況 | 空 |
| 引き渡し | 相談 |
| 設備 | 電気・ガス・上下水道 |
| その他 | 写真に写っている動産類は販売価格に含まれません。※別途販売は可能。 |
| 都市計画 | 市街化区域 |
| 用途地域 | 第二種中高層住居専用地域 |
| 建蔽率 | 40% |
| 容積率 | 200% |
| 高度地区 | 15m第1種高度地区 |
| 防火条例 | 22条区域 |
| 景観条例 | 風致地区/岸辺型建造物修景地区/近景デザイン保全区域/遠景デザイン保全区域 |
| 屋外広告物 | 屋外広告物第2種地域 |
| その他法令制限 | 居住誘導区域/近郊整備区域/宅地造成等工事規制区域 |
| 小学校 / 中学校 | 桂川小学校/桂中学 |
| 取引形態 | 媒介 |
| 仲介手数料 | 3%+6万円(税別) |
| 担当者 | 上田隆文 |
その他におすすめの物件
-
賃貸物件
【ペット可・事務所利用可】13人のデザインで彩るネオ賃貸プロジェクト ロイヤルコート嵯峨 ファイナル
京都市右京区嵯峨 | 賃料6.5,万円~12.8万円
-
賃貸物件
【ペット可・事務所利用可】背伸びのない素敵空間。お料理好きの方はこちらへ。
京都市右京区嵯峨 | 賃料:9.8万円
-
賃貸物件
【ペット可・事務所利用可】揺らぐカーテンと自由の空間
京都市右京区嵯峨 | 賃料:12.8万円
-
賃貸物件
【ペット可・事務所利用可】職人が手掛けた作品を基にデザインしたお部屋
京都市右京区嵯峨中通町 | 賃料:9.2万円
-
賃貸物件
【ペット可・事務所利用可】まるでアート作品のような部屋
京都市右京区嵯峨中通町 | 賃料:9.8万円
-
賃貸物件
【ペット可・事務所利用可】無機質と有機質と私
京都市右京区嵯峨 | 賃料:11.5万円
-
賃貸物件
【ペット可・事務所利用可】古いものが好物で好きを詰め込んだ空間
京都市右京区嵯峨 | 賃料:9.2万円
-
賃貸物件
【ペット可・事務所利用可】魅惑のアイランドキッチン
京都市右京区嵯峨 | 賃料:12.8万円

