元銭湯から始まるジム物語
60年以上前には銭湯として使われていた建物が、数年前にジムとして新しく息を吹き返した、物語の深い建物。
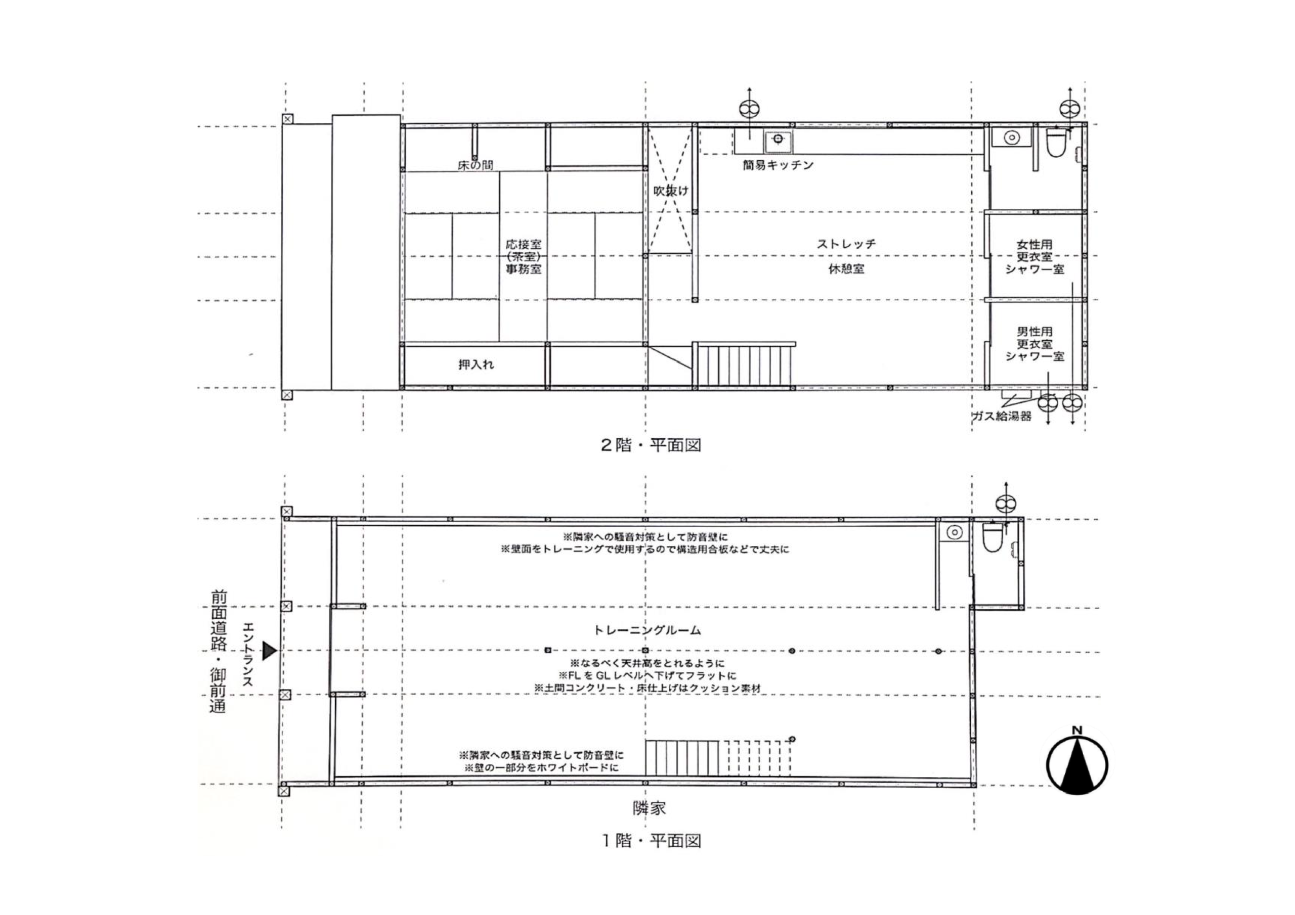
今回は、そのジムの居抜きの状態での賃貸募集です。
外観は町家のような趣があり、こんなジムあったの?!と驚きを隠せません。
京都らしくて、いいじゃないですか。
元銭湯ということもあり(?)、天井が高く、1階の一番高いところで3mほどはありそうです。
ワンフロアがしっかりと広く、防音工事がされていたり、シャワー室が2つあったりと、引き続きジムとして活用するにはもってこいの物件です。
ただ、防音に関しては精度が不明なので、必要に応じて追加することがおすすめのようです。
間口がしっかりあり、立派ですよね。
道路から1mほど、深いところで1.3m控えたところに玄関があるので、建物前に自転車を置くこともできそう。
ちなみに徒歩3分圏内にコインパーキングもあるので、車でお越しのお客様も困りません。
もう一つちなみに、徒歩6分の距離に山城温泉があります。
ジムのシャワー室もいいですが、たまには帰りに山城温泉で絞った体を休める、なんてプランも面白そう。
元銭湯らしい箇所も残っており、とてもキュート。
銭湯の廃業が目立つ最近ですが、それでも、面影を残して建物を引き継ぐ文化はとてもいいですよね。
さあ、バトンは渡されました。
この建物に、次の物語を刻むのはあなたです!
お問い合わせをお待ちしております。
物件概要
| 種別 | 一戸建て |
|---|---|
| 物件名 | 北野天満宮 一棟貸し |
| 所在地 | 京都市上京区東竪町114番1 |
| 賃料 | 300,000円(税別) |
| 管理費/共益費 | なし |
| 礼金 | 賃料の1ヶ月分(税別) |
| 保証金 | 賃料の3ヶ月分 *償却2ヶ月分 |
| 更新料 | 賃料の1ヶ月分(税別) |
| 交通 | 京都市営バス「北野天満宮」停 徒歩3分 嵐電(京福)北野線「北野白梅町」駅 徒歩10分 |
| 面積 | 約160㎡ |
| 総戸数 | 1戸 |
| 築年月 | 築年時期不詳 |
| 入居可能時期 | 相談 |
| 設備 | 上下水道、電気 【残置物】シャワールーム2ヶ所、トイレ2ヶ所、ミニキッチン |
| 契約/期間 | 普通借家契約/3年 |
| 取引形態 | 媒介 |
| 仲介手数料 | 賃料の1ヶ月分(税別) |
| その他 | フィットネスジム居抜き、造作譲渡費用無償 |
その他におすすめの物件
-
賃貸物件
しっとり穏やかな町家暮らし
京都市伏見区桃山 | 賃料:12万円
-
賃貸物件
【価格変更】特別で自由な店舗戸建
北区上賀茂岩ヶ垣内町 | 賃料:24万円(税別)
-
賃貸物件
千本四条の秘密基地
京都市中京壬生 | 賃料:10万円(税別)
-
賃貸物件
河原町通面す、ちょっと変わった個人店が集まるこの街で
京都市上京区出水町 | 賃料:50万円(税別)
-
賃貸物件
京都のベストなところへフラッと
京都市下京区 | 賃料:6.5万円
-
売買物件
古社に想いを乗せて
大津市木下町 | 4,280万円(税込)
-
売買物件
【価格変更】知る人ぞ知る場所、静原のリノベ物件
京都市左京区静市静原 | 2,780万円
-
賃貸物件
【短期募集・家具付】昭和ドラマのワンシーンのように
京都市山科区竹鼻 | 賃料:7万円








