ナイスなヴィンテージビルディングの2階。
今回ご紹介させていただく物件は、下京区四条町、新町通りに面した、京都中心地に位置する、ヴィンテージビル。京都友禅ビル2階のテナント物件。過去3,5階の物件を紹介させていただきました。
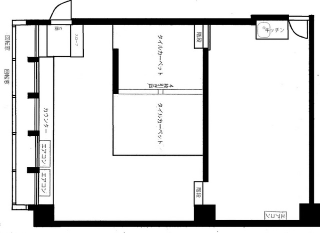
街中で新しい事務所を探されている方朗報です。今回ご紹介させていただく2階の物件ですが、明日からでも事務所開けることが出来るんじゃないかというくらいの状態での募集となります。ちょっとクリーニングいれれば、あら不思議。新事務所できちゃいました。っていうくらい現状は綺麗です。(※私の主観となりますので、現状については現地確認をよろしくお願いします。)
また、専有面積が約27坪となりまして、広すぎず狭すぎずというちょうどいいサイズ感となります。もちろん、改装工事をしていただく事はOKなので、このちょうどいいサイズ感を自分色に染めていただいてもOKです。ヴィンテージビルの雰囲気を活かして、ここをこうして、あっちはこうして、ごにょごにょごにょと改装しても素敵な空間になるだろうなーって妄想しております。
場所の説明は不要ですね。地下鉄四条駅徒歩4分と京都のど真ん中。祇園祭の時期になると物件の前の通りに鉾が出現いたしますので、この物件の窓から鉾見たい放題です。
そんな場所にある、このヴィンテージビル。ファサードもナイスです。
そんなナイスな街中のヴィンテージビル、京都友禅ビルの2階。
お問い合わせお待ちしております。
物件概要
| 種別 | マンション |
|---|---|
| 物件名 | 友禅ビル2階 |
| 所在地 | 京都市下京区新町通四条下る四条町349ー1 |
| 賃料 | 250,000円(税別) |
| 管理費/共益費 | 共益費 12,000円(税別) |
| 礼金 | 賃料1ヵ月 |
| 保証金 | 保証金3カ月 保証金返還率:3年未満20% 5年未満30% 8年未満50% 8年以上80% ※再契約を想定 |
| 交通 | 市営地下鉄烏丸線 四条駅 徒歩4分 |
| 面積 | 約91㎡(約27.53坪) |
| 築年月 | 昭和45年10月 |
| 入居可能時期 | 相談 |
| 設備 | 電気・ガス・水道 |
| 契約/期間 | 定期借家契約5年間 |
| 取引形態 | 媒介 |
| 仲介手数料 | 要 |
| 保証会社加入 | 加入要(応相談) |
| その他 | ・水光熱費:使用量により実費精算 ・損害保険加入要 ・駐輪場3台利用可(無料) ・駐車場1台貸出可能(35,000円(税別)/保証金100,000円) ・解約3か月前告知 ・内装工事借主負担(既存の室内仕切り壁等が不要の場合は応相談) ・インターネット環境借主負担(既存NTT回線等利用可) ・原状回復要(※但し貸主が不要と判断した場合はその限りではない) ・業種:飲食不可、業種要相談 |
その他におすすめの物件
-
賃貸物件
再募集・シェアハウス「Knob」★事務所利用可★短期利用可
京都市北区大将軍 | 賃料:3.9万円〜
-
賃貸物件
映像撮影、配信、はたまた照明遊び
京都市右京区嵯峨 | 賃料:9.2万円
-
売買物件
このアングルがトライアングル~オーナーチェンジ~
京都市西京区川島粟田町 | 2,480万円
-
賃貸物件
魅惑のアイランドキッチン
京都市右京区嵯峨 | 賃料:12.8万円
-
売買物件
河原町通面す、ちょっと変わった個人店が集まるこの街で 賃貸マンションプラン有 ※価格変更※
京都市上京区出水町 | 9,980万円
-
賃貸物件
同志社裏に隠れた土間ベース
京都市上京区相国寺 | 賃料:9.5万円
-
賃貸物件
日々、変わる街で商う 京都市左京区岡崎
京都市左京区岡崎 | 賃料:35万円(税別)
-
売買物件
優雅な庭でアフタヌーンティーを
大津市比叡平