紫明通りからちょっと入った趣のある路地に面した、京町家
今回ご紹介させていただく物件は、趣のある路地に佇む京町家プロフィール取得済みの京町家です。
いろいろと路地を見てきましたが、
今回の物件の様な手入れされた植栽、趣のある石畳がある路地はなかなかお目にかかれないです。個人的主観ですが、物件を探す際にその物件までのアプローチを重要視する事があります。その物件までのアプローチが素敵だと物件がより素敵にみえますし、何よりそのアプローチを通る時にワクワクします。毎日ワクワクできる物件ってやっぱり素敵です。
物件が位置するのは、最寄り駅でいうと鞍馬口駅から徒歩4分の場所。駅から近く便利な立地です。そして、紫明通りを少し入った所に位置しています。あくまで個人ランキングですが、紫明通りは好きな通りベスト5に入る通りです。紫明通りに植えられた、いちょう並木がとても素敵で、こんな素敵な場所に住めたらなーって思える場所です。秋は特にむちゃくちゃ綺麗です。
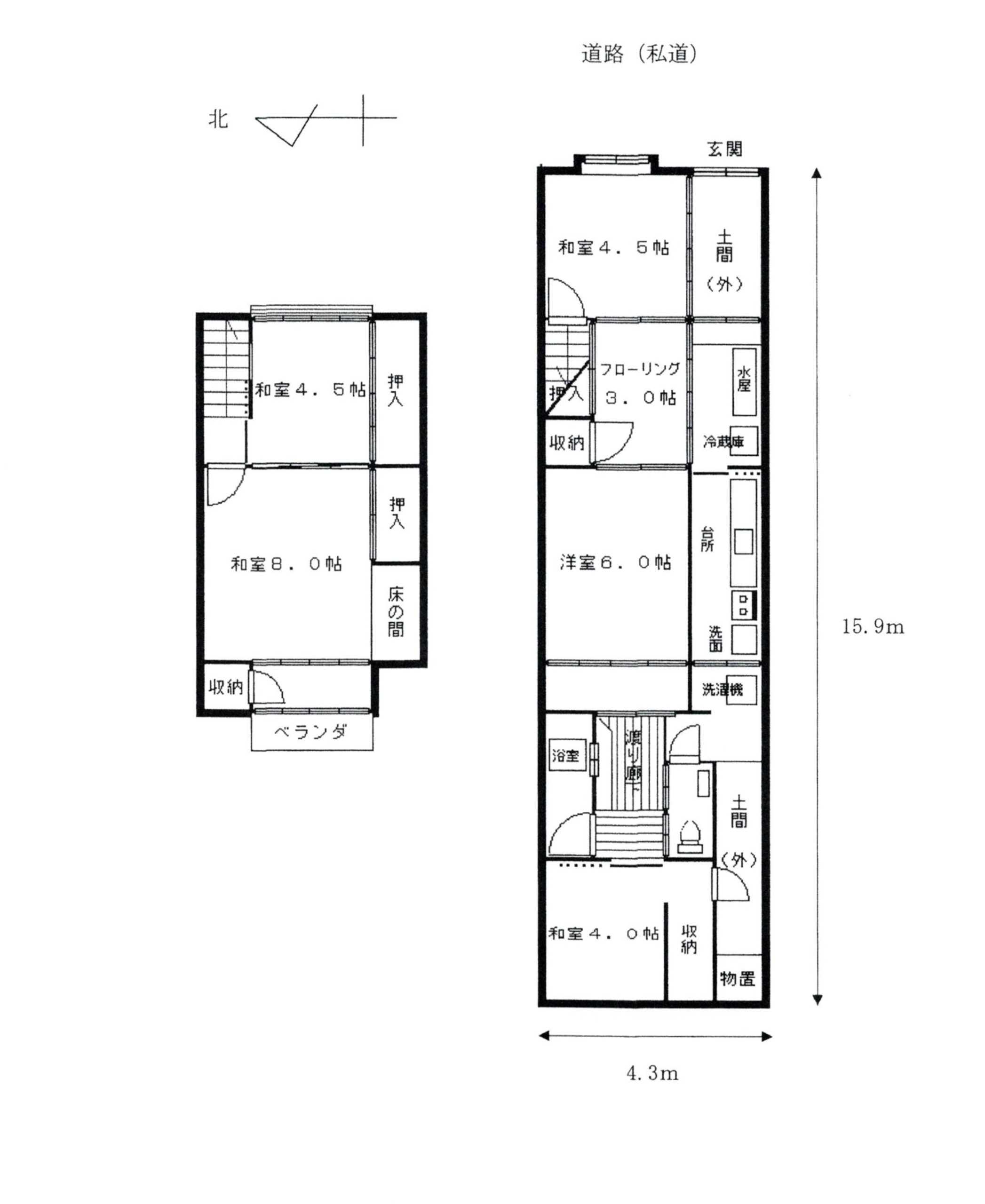
それでは建物の紹介です。
昭和23年より以前に建られていた記録が残っている、京町家プロフィール取得済みの京町家の建物になります。現状は一部解体をしており、小屋組みが見える状態となっています。いい感じのごろんぼが見えていて、ええ雰囲気です。
この雰囲気のままで住んでみてもいいのではないかと思ってみたりもしましたが、やはり改装は必要な物件になるかなと思います。でも、改装しても素敵な物件となるのだろうなと妄想が進む物件です。
紫明通りからちょっと入った趣のある路地に面した、京町家物件。ご興味ございましたら是非お問い合わせお待ちしております。
物件概要
| 種別 | 一戸建て |
|---|---|
| 建物名称 | 紫明通りからちょっと入った趣のある路地に面した、京町家 |
| 販売価格 | 3,580万円 |
| 所在地 | 京都市北区小山下総町34番地14 |
| 交通 | 市営地下鉄烏丸線 鞍馬口駅 徒歩4分 |
| 敷地面積 | 79.57㎡(約24.07坪) |
| 地目・地勢 | 宅地・平坦 |
| 権利 | 所有権 |
| 接道状況 | 東側非道路幅員1.1mに約4.5m接道 |
| 建物面積 | 1階37.35㎡ 2階28.76㎡ ※その他一部増築未登記部分有 |
| 建物構造 | 木造瓦葺2階建 |
| 築年数 | 建築年月日不詳 ※昭和23年より以前に建築された記録アリ |
| 間取り | 4DK |
| 現況 | 空家 |
| 引き渡し | 相談 |
| 設備 | 上・下水道、電気、ガス |
| その他 | ・前面道路非道路につき再建築不可 ・増築未登記有 ・町内会費年間約36,000円、路地街灯の電気代年間約2,400円 ・路地植栽剪定費用の負担有 ・連棟住宅 |
| 都市計画 | 市街化区域 |
| 用途地域 | 第1種住居地域 |
| 建蔽率 | 60% |
| 容積率 | 200% |
| 高度地区 | 15m第2種高度地区 |
| 防火条例 | 準防火地域 |
| 景観条例 | 旧市街地型美観地区、遠景デザイン保全区域 |
| 屋外広告物 | 第3種地域 |
| その他法令制限 | 宅地造成等工事規制区域 |
| 小学校 / 中学校 | 紫明小学校/加茂川中学校 |
| 取引形態 | 売主 |
| 仲介手数料 | ※仲介は株式会社AAOが行います。取引には仲介手数料が発生します。 |
| 担当者 | 上田隆文 |
その他におすすめの物件
-
売買物件
スカットハウス with はたけ
北区西賀茂下庄田町 | 2,180万円
-
賃貸物件
【再募集】暇じゃない街、住みませんか?
京都市左京区岡崎 | 賃料:12万円
-
賃貸物件
再募集・シェアハウス「Knob」★事務所利用可★短期利用可
京都市北区大将軍 | 賃料:3.9万円〜
-
売買物件
古社に想いを乗せて オープンハウス13日、14日開催!
大津市木下町 | 4,280万円(税込)
-
売買物件
【価格変更!!】夕焼けに染まる家
京都市伏見区 丹波橋 | 2,980万円
-
賃貸物件
私の田舎暮らし原点※価格変更 長期可能になりました
滋賀県大津市伊香立 | 賃料:9.8万円
-
賃貸物件
しっとり穏やかな町家暮らし
京都市伏見区桃山 | 賃料:12万円
-
賃貸物件
【価格変更】特別で自由な店舗戸建
北区上賀茂岩ヶ垣内町 | 賃料:24万円(税別)
