しっとり穏やかな町家暮らし
せっかく京都に住むなら、町家に住んでみたい、そんな憧れをもつ方も少なくないでしょう。
この度、改修済みの町家の賃貸募集が始まります。
改修を担当したのは、作事組という町家改修のプロの集まりのため、伝統的な工法や仕様が大切にされた改装となっております。
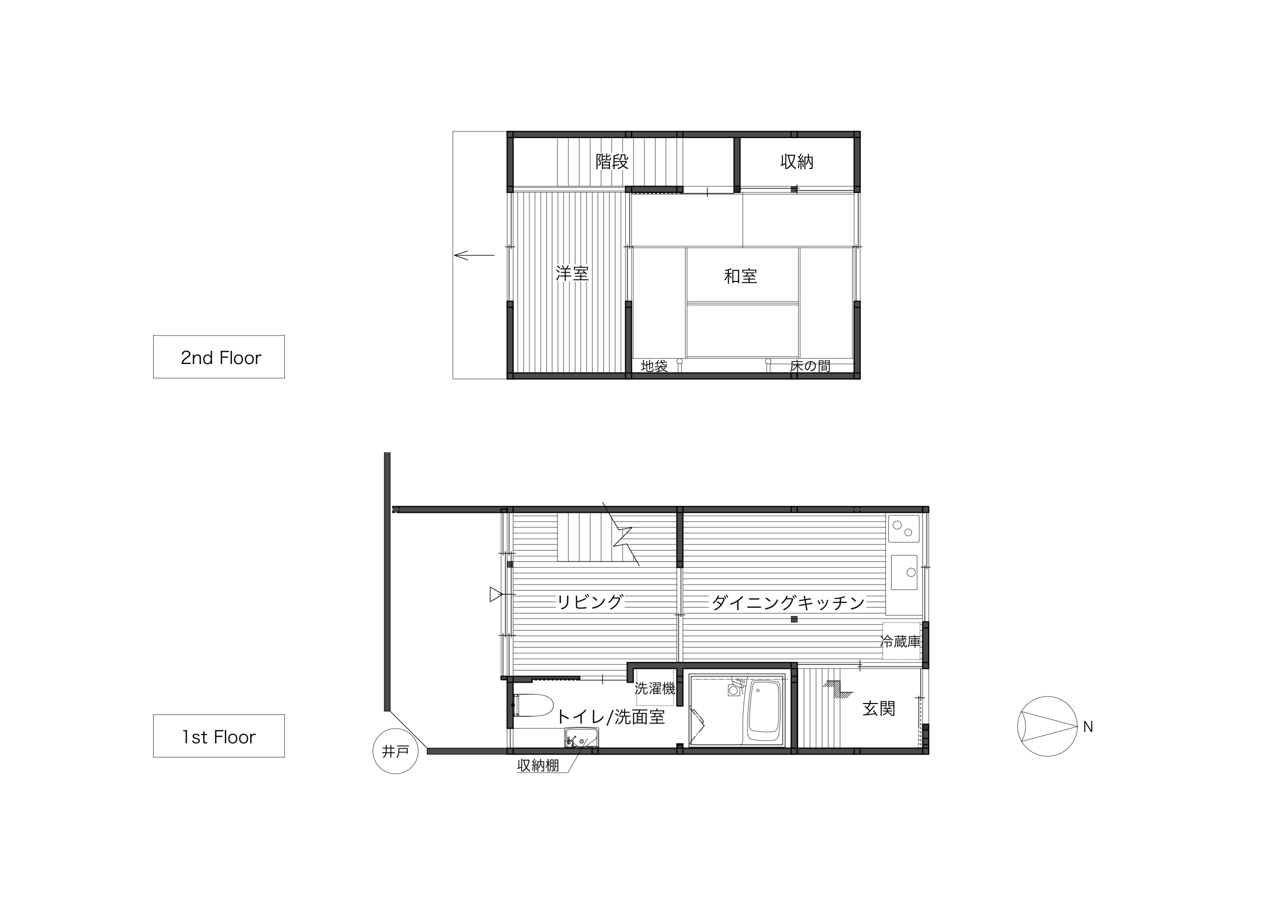
入ってすぐは、比較的余裕のある玄関。お好きな下駄箱もおけます。
1階は玄関から奥まで、全て無垢のフローリングが使用されており、歩いていて気持ちいい。
この綺麗な木目に、落ちる陽の光や、影がまた心地いい。
ダイニングの先には、ぼーっと過ごすにちょうどいいサイズのお庭もございます。
憧れの縁側に、昭和レトロな金魚の香取線香が置いてありました笑
こういうのが、すごく似合う雰囲気です。
水回りは、トイレと洗面と脱衣所を一つにすることで、限られたスペースを最大の広さで使えます。
この建具が、また、可愛いんですよね。
無双窓というそうです。一部をスライドすると、建具に格子状のデザインが開いたり、閉じたり。
換気にも向いているので、水回りにぴったりです。
階段は、ちゃんと緩やかに直してくれています。安心。
そしてこの2階がまた、素敵な空間。
階段の吹き抜けと繋がった和室が一部屋、その隣にもう一部屋。
こういう、上下の空間のつながりがある家って個人的に大好きです。
家の中で別々の部屋にいるけど会話はできるというか。階段を覗き込み合えば顔を合わせられたりとか。
個人の時間を過ごす中でも、共同の生活をしている実感があって。
上手く言えないけどそんな魅力があるなあって思います。
あと、交通はすごく便利です。丹波橋駅まで徒歩4分。
走れば30秒といったところ。
京都駅へも大阪方面へも一本ですし、都市部でお仕事されている方には特におすすめかも。
忙しい街中で一生懸命働いた後は、この落ち着いた町家へ帰りましょう。
丹波橋駅を出て、緑も豊かな路地の先のこの町家へ。
しっとり穏やかに暮らしたい。
そんな皆様、お問い合わせお待ちしております。
物件概要
| 種別 | 一戸建て |
|---|---|
| 物件名 | 羽柴長吉中町 町家 |
| 所在地 | 京都市伏見区桃山羽柴長吉中町39番地29 |
| 賃料 | 120,000円 |
| 礼金 | 賃料の1ヶ月分 |
| 敷金 | 賃料の1ヶ月分 |
| 再契約料 | なし |
| 交通 | 近鉄京都線「丹波橋」駅 徒歩3分 京阪本線「丹波橋」駅 徒歩4分 |
| 面積 | 1階:33.38㎡ 2階:28.42㎡ 延べ:61.8㎡ |
| 総戸数 | 1戸 |
| 築年月 | 築年数不詳 |
| 入居可能時期 | 相談 |
| 設備 | 上下水道・電気・ガス・給湯器新調予定 【残置物】エアコン1台、照明(風呂、トイレ、洗面、階段) |
| 契約/期間 | 定期借家契約3年 |
| ペット飼育 | 不可 |
| 保証人 | 要 |
| 駐車/駐輪 | なし |
| 取引形態 | 媒介 |
| 仲介手数料 | 賃料の1ヶ月分(税別) |
| 保証会社加入 | 要 |
| その他 | 希少なガラスが填まっているため、取り扱いには十分ご注意ください。 隣家の換気扇が本物件庭側に向いて設置されています。 原状回復要 改装工事可(オーナーに事前相談必須) 町内会費月額1,000〜2,000円 再契約相談可 ペット不可、楽器演奏不可、シェア不可、民泊不可、喫煙不可 |
その他におすすめの物件
-
シェアハウス 寺町ろじ珈琲 ※退去予定でました
京都市上京区寺町通 | 賃料:4.1万円
-
売買物件
金閣寺近し。車2台停めれます。大文字望めます。
京都市北区衣笠西御所ノ内町 | 3,780万円
-
賃貸物件
緑の比叡平 ~目の前に公園を添えて~ パート2
大津市比叡平 | 賃料:8.8万円
-
賃貸物件
【再募集】猫のお家
京都市左京区一乗寺南大丸町 | 賃料:8.3万円
-
賃貸物件
農園付きアパート、住んでみませんか?
山科区日ノ岡坂脇町 | 賃料:7.5万円
-
賃貸物件
同志社裏に隠れた土間ベース *価格変更
京都市上京区相国寺 | 賃料:8.8万円
-
賃貸物件
【ペット可・事務所利用可】13人のデザインで彩るネオ賃貸プロジェクト ロイヤルコート嵯峨 ファイナル
京都市右京区嵯峨 | 賃料6.5,万円~12.8万円
-
賃貸物件
【ペット可・事務所利用可】背伸びのない素敵空間。お料理好きの方はこちらへ。
京都市右京区嵯峨 | 賃料:9.8万円
























